東急ドエルシーサイドコート鵠沼海岸 |
小田急江ノ島線「鵠沼海岸」駅 徒歩6分
相模湾・江の島を望みます。
ペットと一緒に暮らせます
![]() 東側には江の島を望めます | ![]() 相模湾を望みます |
![]() 建物外観 | ![]() リビングに居ながら海 | ![]() リビング横の洋室5.4帖 |
![]() | ![]() | ![]() |
![]() 洗面化粧台・洗濯機置場 | ![]() 大きな鏡で広く感じます | ![]() ウォシュレット付 |
販売価格7,490万円(税込)
物件概要 |
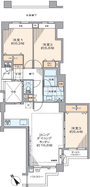
3LDK
専有面積 /74.17㎡(22.43坪)
バルコニー面積 /3.97㎡(1.20坪)
専有面積 /74.17㎡(22.43坪)
バルコニー面積 /3.97㎡(1.20坪)
| 所 在 | 藤沢市鵠沼海岸2丁目 |
| 構 造・規 模 | 鉄筋コンクリート造地下1階付5階建3階部分 |
| 築 年 月 | 2001年5月 |
| 総 戸 数 | 82戸 |
| 土 地 権 利 | 所 有 権 |
| 管 理 費 | 月額11,600円 |
| 修繕積立金 | 月額29,890円 |
| 管 理 形 態 | 全部委託(日勤) |
| 管 理 会 社 | 東急コミュニティー(株) |
| リフォーム内容 | 全室クロス・フローリング張替、システムキッチン・トイレ・ユニットバス・洗面化粧台・建具交換・ハウスクリーニングなど 2025年6月リフォーム完了 |
| 現 況 | 空 家 |
| 引 渡 し | 相 談 |
| 駐 車 場 | 空有(月額9,000~16,000円) |
| 駐 輪 場 | 空有(月額300円) バイク置場:空有(月額700円・1000円) |
| エレベーター | 有り |
| ペット | 可(細則有り) |
| 設 備 | オートロック・宅配BOX |
この物件について問い合わせる ☎ 0466-96-0412 |
















